Nos avis clients
Nos avis clients
0

PARIS XXe - MENILMONTANT Petite ceinture

Paris (75020)
Réf : JH8765

Paris 20ème, quartier Ménilmontant, face à la petite ceinture arborée. A proximité immédiate de la rue Sorbier et du parc de Belleville.

Métro Ménilmontant (Ligne 2) ou Gambetta (Ligne 3).

L'ancienne maison de Chantal Akerman.

Diagnostic de performance énergétique : C (estimation des coûts annuels compris entre 820€ et 1150€).

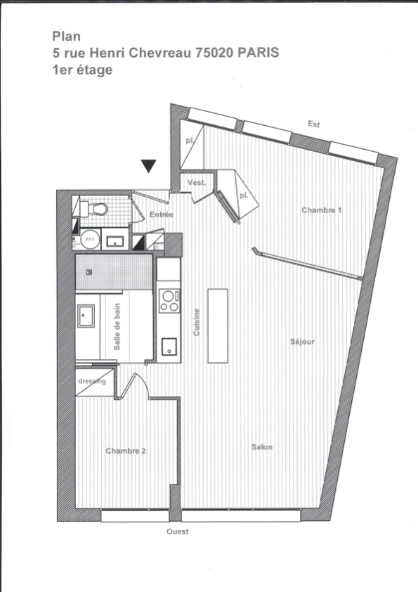
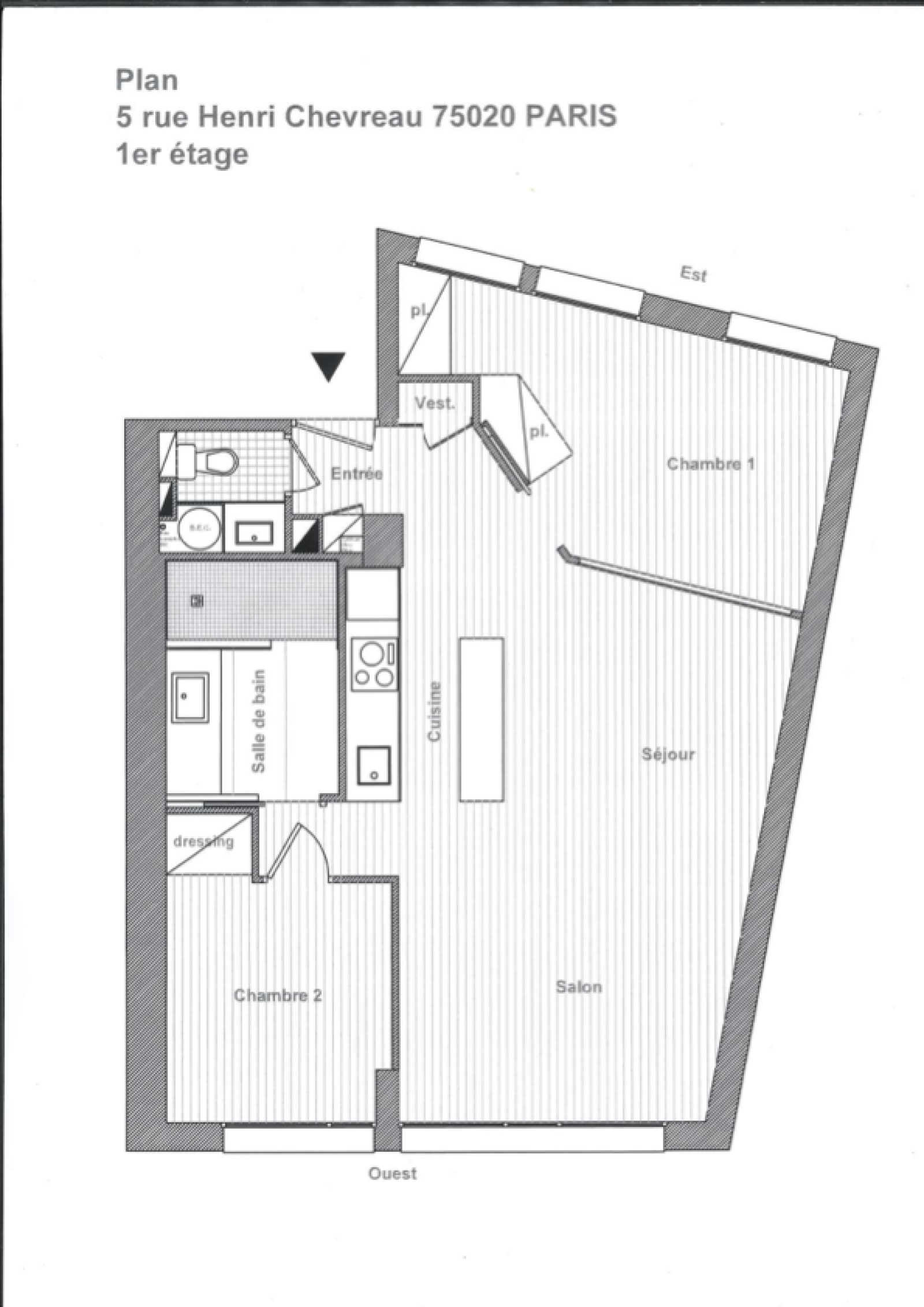
Au sein d'une petite copropriété moderne bien tenu des années 1990, l'agence Bonjour Oscar vous présente un appartement 3 Pièces rénové avec goût, donnant directement sur la petite ceinture verdoyante (ancien chemin de fer), exposé est / ouest, sans vis-à-vis.

Le bien est parfaitement composé sans perte de place : une entrée avec nombreux rangements, un toilette indépendant, un salon / cuisine ouverte équipée, deux chambres dont une sous verrière, et une grande salle d'eau à l'italienne.

L'appartement offre de beaux volumes avec de grandes fenêtres en double vitrage, des rangements dans chaque pièces, parquet au sol, porte blindée. Il est au 4ème étage sur la petite ceinture, et seule la deuxième chambre donne au 1er étage sur la rue.

Les charges mensuelles sont de 100€/mois et la taxe foncière s'élève à 1150€.

Le chauffage et l’eau chaude sont individuels electriques, avec des radiateurs à inertie sèche.

Le quartier est commerçant : marché local boulevard de Ménilmontant le mardi et le vendredi matin, nombreux bars/restaurant rue Sorbier, supermarché bio à quelques pas.

L'immeuble comporte 4 lots d’habitation, un appartements par étage, et les parties communes ont été récemment rénovées.

Un local vélo et poubelles sont aménagés au rez-de-chaussée, faciles d'accès.

Les informations sur les risques auxquels ce bien est exposé sont disponibles sur le site Géorgiques http://www.georisques.gouv.fr

Votre projet nécessite la vente de votre bien ? Dès aujourd'hui demandez-nous de venir estimer votre bien. Ce service est offert, confidentiel et réalisé en 48h.

IMPORTANT : Nous vous informons que suite à la nouvelle législation en vigueur, une pièce d'identité sera obligatoirement demandée pour toute visite. Cela concerne toutes les personnes présentes lors de la visite, même si elles ne sont pas les acquéreurs du bien visité.

découvrir le bien
Prix du bien 620 000 €
Pièce(s) 3
Chambre(s) 2

Caractéristiques du bien

Caractéristiques Valeurs
Code postal 75020
Surface habitable (m²) 58,43 m²
Surface loi Carrez (m²) 58,43 m²
Nombre de chambre(s) 2
Nombre de pièces 3
Etage 1
Ascenseur NON
Vue Dégagée
Nb de salle d'eau 1
Cuisine Américaine
Type de cuisine Equipée
Mode de chauffage Climatisation
Type de chauffage Radiateur
Format de chauffage Individuel
Interphone OUI
Visiophone NON
Balcon NON
Loggia NON
Terrasse NON
Cave NON
Exposition Est-Ouest
Année de construction 1990

Infos financières

Caractéristiques Valeurs
Prix de vente 620 000 €
Les honoraires d'agence seront intégralement à la charge du vendeur  
Charges 100 €
Taxe foncière annuelle 1 150 €

Bilans énergétiques

DPE GES
Ce bien vous intéresse ?
Fieldset par défaut
Fieldset par défaut
Validation

* Champs obligatoires

Contacter l'agence
Validation
Les informations recueillies sur ce formulaire sont enregistrées dans un fichier informatisé par La Boite Immo agissant comme Sous-traitant du traitement pour la gestion de la clientèle/prospects de l'Agence / du Réseau qui reste Responsable du Traitement de vos Données personnelles. La base légale du traitement repose sur l'intérêt légitime de l'Agence / du Réseau. Elles sont conservées jusqu'à demande de suppression et sont destinées à l'Agence / au Réseau. Conformément à la loi « informatique et libertés », vous disposez des droits d’accès, de rectification, d’effacement, d’opposition, de limitation et de portabilité de vos données. Vous pouvez retirer votre consentement à tout moment en contactant directement l’Agence / Le Réseau. Consultez le site https://cnil.fr/fr pour plus d’informations sur vos droits. Si vous estimez, après avoir contacté l'Agence / le Réseau, que vos droits « Informatique et Libertés » ne sont pas respectés, vous pouvez adresser une réclamation à la CNIL. Nous vous informons de l’existence de la liste d'opposition au démarchage téléphonique « Bloctel », sur laquelle vous pouvez vous inscrire ici : https://www.bloctel.gouv.fr Dans le cadre de la protection des Données personnelles, nous vous invitons à ne pas inscrire de Données sensibles dans le champ de saisie libre.
Ce site est protégé par reCAPTCHA, les Politiques de Confidentialité et les Conditions d'Utilisation de Google s'appliquent.